Мы строим и проектируем уютные и продуманные дома для комфортной жизни. Благодаря нашему опыту в строительстве, мы создаем проекты с мыслью об экономике строительства, внедряем оптимальные решения и готовим проектную документацию так, чтобы строителям было легко работать на каждом этапе.
На данный момент Стройпрогресс31 строит в Белгороде, по проектированию работаем по всей России и СНГ.
Вы можете приобрести понравившийся проект на нашем сайте, заказать изменения в готовый проект или заказать индивидуальный по своему эскизу. Мы работаем официально, по договору, при оплате готового проекта вы сразу получаете чек об оплате на указанный вами адрес электронной почты.
Мы всегда на связи и ждем от вас фотографий дома, построенного по нашему проекту!
СТРОЙПРОГРЕСС 31 - проекты домов.
Дом, построенный по проекту S-221, в Воронеже.
(Ссылка на пост в Телеграм в комментариях)
Коллеги закончили строительство очередного дома по нашему проекту, в пригороде Воронежа. Дом выполнен в фирменном стиле компании - с облицовкой "Баварская кладка"
А нам как всегда очень приятно посмотреть, как наши идеи воплощаются "вживую" и не менее приятно осознавать, что такие дома пользуются коммерческим успехом:)
Данный дом готов и доступен для покупки, всю информацию и стоимость от застройщика прилагаем:
Пригород Воронежа, д. Медовка, ул. Генерала Белобородова, 7а, участок 6 соток
Стоимость 10 800 000р
Блок 400 + кирпич
Фундамент ленточный
Пред-чистовая отделка. Полу-сухая стяжка пола, механизированная штукатурка стен, разводка электрики, сантехники, радиаторы отопления, тёплый пол, котёл.
Газ, вода-скважина ( 38м) и электричество 15кв, переливная сливная яма 4 кольца. Все дома передается покупателю с полностью открытыми лицевыми счетами.
3 weeks ago | [YT] | 94
View 1 reply
СТРОЙПРОГРЕСС 31 - проекты домов.
Дом, по проекту S-223, в Воронеже. (Ссылка на пост в Телеграм в комментариях)
С нами поделились фотографиями дома, построенного по одному из наших самых популярных проектов - S-223. Дом выполнен под облицовку кирпичом, в стиле "Баварская кладка" - очень интересно было посмотреть на него в такой конфигурации)
Дом построен нашими коллегами - застройщиками, им очень полюбились наши проекты и довольно часто мы выкладываем их работы в нашем Телеграм канале. Насколько можем судить со слов руководителя компании - наши планировки предоставляют немалое конкурентное преимущество и такие дома пользуются хорошим спросом, учитывая высокое качество строительства.
На случай, если кому-то из наших подписчиков будет интересно, данный дом также продается:
Пригород Воронежа, Д.Медовка, ул. Генерала Филипченко, 33
Стоимость 8.8 млн.р, участок 5 соток.
Блок 400 + кирпич
Предчистовая отделка. Полусухая стяжка пола, механизированная штукатурка стен, разводка электрики, сантехники, радиаторы отопления, тёплый пол, котёл. Газ, вода электричество септик, все подключено.
1 month ago | [YT] | 115
View 8 replies
СТРОЙПРОГРЕСС 31 - проекты домов.
Фото в адекватном формате в нашем Телегам, ссылка в комментариях.
Дом, построенный по проекту S-252
С нами поделились фотографиями дома, построенного по одному из самых популярных наших проектов на две спальни.
Этот вариант отлично подходит для тех, кому не нужны три спальни, но есть необходимость в полноценном доме с просторной дневной зоной, приличным по размеру санузлом и такими атрибутами частного дома, как общие гардеробные.
В постройке дом весьма удобен - здесь всего одна несущая стена, а все коммуникации собраны в одной зоне!
Большое Спасибо хозяевам за фотографии, желаем скорейшего новоселья и счастья в новом доме:)
Приобретая проект в Стройпрогресс31, Вы можете быть уверены, что мы всегда на связи и готовы ответить на возникающие вопросы!
1 month ago | [YT] | 69
View 9 replies
СТРОЙПРОГРЕСС 31 - проекты домов.
Дом, построенные по проекту S-254 (Пост в Телеграм в комментариях)
С нами поделились фотографиями двухэтажного дома, построенного по нашему проекту S-254.
В отличии от оригинальной версии, стены выполнены под отделку декоративной штукатуркой. Дом в зеркальном исполнении с небольшими корректировками.
В целом проект мне кажется очень удачным - 4 полноценные спальни, безопасная лестница, просторная территория дневной зоны - и все это при ширине дома в 8 с половиной метров.
Такой дом может стать отличным решением для небольшого участка, когда необходимо больше трех спален.
Большое Спасибо хозяевам за фотографии и желаем счастья в новом доме:)
Приобретая проект в Стройпрогресс31, Вы можете быть уверены, что мы всегда на связи и готовы ответить на возникающие вопросы!
2 months ago | [YT] | 72
View 3 replies
СТРОЙПРОГРЕСС 31 - проекты домов.
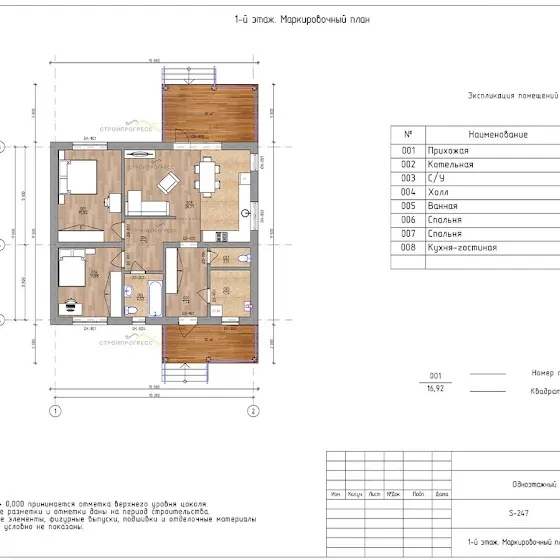
Дом, по проекту S-247, построенный в Кировской области:)
(Если не открываются фото, ссылка на Телеграм в комментариях)
С нами поделились фотографиями дома, который построен по одному из самых популярных наших проектов на две спальни - S-247.
Этот проект создан для тех, кто ищет для себя комфортное решение с современной планировкой, но не нуждается в третьей спальне. Здесь у нас простейшая архитектура с одной несущей вдоль конька, два санузла и общее пространство гостиной, столовой и кухни. Наши подписчики внесли некоторые изменения по своему усмотрению.
Для нас также записали небольшой видеообзор, думаю вам будет интересно:)
Хозяевам желаем скорейшего новоселья и благодарим за фото/видео! Ждем обзор после отделки;)
2 months ago | [YT] | 85
View 1 reply
СТРОЙПРОГРЕСС 31 - проекты домов.
Строительство каркасного минидома S-294
На прошедших выходных мы приступили к реализации каркасного домика по нашему недавнему проекту. Дом спроектирован таким образом, чтобы построить его можно было в минимальные сроки. На первый этап - ростверк и лаги пола, у нас ушло примерно полтора рабочих дня, хотя можно уложиться и в один день, если постараться. Так что в этом плане все идет как надо)
На следующей неделе планируется устройство пола, возведение стен и по возможности - устройство стропильной системы, хотелось бы закрыть дом как можно скорей.
По хорошему, на строительство и внешнюю отделку такого домика должно уходить до 10 дней, так что по скорости возведения такой дом не уступает модульному, а обходится дешевле. При этом мы не ограничены по ширине дома и высоте потолков:)
2 months ago | [YT] | 68
View 2 replies
СТРОЙПРОГРЕСС 31 - проекты домов.
Дом, построенный по проекту S-263 в Москве.
(Если не открываются фото, переходите в Теллеграм, ссылка в комментариях)
Зеркальная версия проекта с индивидуальными изменениями. Хозяева не побоялись сложностей, и отказались от классического потолка в гостиной, обеспечив таким образом объемное пространство дневной зоны.
Радует, что нам уже присылают фотографии домов, в которых живут наши подписчики:)
Большое спасибо за фотографии и желаем счастья в собственном уютном доме!
3 months ago | [YT] | 82
View 3 replies
СТРОЙПРОГРЕСС 31 - проекты домов.
Дом, построенный по проекту S-266 (204).
Фото и видео дублированы в Телеграм, ссылка в комментариях.
Недавно нас порадовали фотографиями и видео-обзором дома, построенного по одному из наших самых популярных проектов S-266. Если говорить о двухэтажных домах, то это безусловно, самый популярный проект на данный момент.
Это переработанная версия двухэтажного дома S-204, где мы заменили кирпичную облицовку на декоративную штукатурку и на полметра увеличили дом в размерах, по каждой из сторон.
Нам кажется, что для двухэтажного дома такой площади, это идеальный вариант планировки - присутствует спальня на первом этаже, полноценная котельная, неплохая кухня с кладовой и столовой зоной. На второй этаж ведет безопасная лестница. Спальня родителей имеет просторную гардеробную и приватную ванную. Межэтажное перекрытие - плиты, а чердачное - дерево.
Кстати, у нас есть детализированный обзор этого проекта, где мы в мелочах продумали дизайн интерьера.
Благодарим наших подписчиков за фотографии и желаем скорейшего новоселья!
3 months ago | [YT] | 131
View 3 replies
СТРОЙПРОГРЕСС 31 - проекты домов.
Дом, построенный по проекту S-239, Москва.
Больше фото в нормальном формате у нас в Телеграм, ссылка в комментариях.
На днях с нами поделились фотографиями еще одного дома, который строится по нашему проекту.
Конечно, в первую очередь дом выделяется немалыми размерами окон, и хозяева решили сохранить эту концепцию, что не может не радовать:)
Сама планировка примечательна тем, что при небольшой ширине в 12.5 метров, этот дом отнюдь нельзя назвать скромным - здесь у нас помимо трех спален имеется и кабинет, открытое пространство с выходом на террасу под общей кровлей. Террас здесь целых две)
Друзья, мы будем ОЧЕНЬ благодарны за фотографии домов, которые Вы строите по нашим проектам, с Уважением, Стройпрогресс31:)
Мы всегда на связи и готовы ответить на возникающие вопросы и подсказать нюансы, даже спустя годы после приобретения проекта:)
4 months ago | [YT] | 85
View 3 replies
СТРОЙПРОГРЕСС 31 - проекты домов.
Самый бюджетный миниатюрный каркасник.
Для собственных нужд мы разработали проект компактного и сверх-бюджетного каркасного дома, который необходим нам в качестве временного жилища на удаленном земельном участке - это позволит сэкономить время на дорогу и не арендовать жилье по месту.
В качестве альтернативы был вариант с модульным домом, но это гораздо дороже, все равно придется ждать и есть вопросы по качеству ко многим производителям.
Планировка и расположение окон могут быть изменены, в зависимости от потребностей и условий на участке.
Кровля простейшая - цельные 6-ти метровые доски перекрывают дом и террасу.
Нам кажется, такой дом отлично подойдет для сдачи в аренду на Юге или в качестве уютного гнездышка на даче, если вы не собираетесь там жить.
По-хорошему собрать такой дом можно за неделю, а доделывать уже в процессе жизни в нем.
Что скажете? Есть ли потребность в таких домиках в 2025 году? :)
5 months ago | [YT] | 73
View 4 replies
Load more